Sichere Kapitalanlage mit Mietertrag – zentral in Hernals


Kaufpreis
150.000,00 €
Objektart
Wohnung
Objekttyp
Etagenwohnung
Vermarktungsart
Kauf
PLZ
1170
Ort
Wien, Hernals
ImmoNr.
V-25-00188
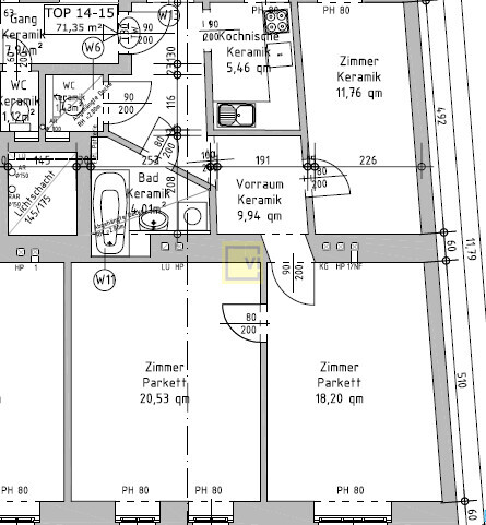
Wohnfläche
71,35 m²
Anzahl Zimmer
3
Anzahl Badezimmer
1
Baujahr
1890
Energieausweis gültig bis
03.03.2029
Provision
3 % zzgl. 20% USt.
HWB
72,8 kWh/(m²a)
Klasse HWB
C
Klasse fGEE
C
fGEE
1,39
Beschreibung
Zum Verkauf steht eine gut aufgeteilte Wohnung in einem gepflegten, 2005 sanierten Zinshaus in der Hernalser Hauptstraße 182 im 17. Bezirk. Die Einheit liegt straßenseitig und unbefristet vermietet.Der Jahresrohertrag beträgt EUR 3.740,16, bei einem Kaufpreis von EUR 142.700 ergibt sich eine Bruttorendite von ca. 2,62 % p. a.
Die beliebte Lage mit sehr guter öffentlicher Anbindung und urbaner Infrastruktur sorgt für dauerhafte Vermietbarkeit – ideal für langfristig orientierte Anleger.
Für Rückfragen und die Vereinbarung eines Besichtigungstermins stehe ich Ihnen gerne zur Verfügung.
Lage
Die Hernalser Hauptstraße zählt zu den zentralen Verkehrsachsen des 17. Bezirks (Hernals) und bietet eine hervorragende Infrastruktur.In unmittelbarer Umgebung befinden sich:
Straßenbahnlinien 43 und 9 (direkte Verbindung zur U6 Alser Straße und zum Schottentor)
Zahlreiche Geschäfte des täglichen Bedarfs, Cafés, Apotheken, Ärzte
Parks und Naherholungszonen in der Nähe (z. B. Schwarzenbergpark, Kongresspark)
Die Lage kombiniert urbanes Leben mit guter öffentlicher Anbindung – ein attraktiver Standort für Mieter und Investoren gleichermaßen.
Ansprechpartner
Seiten: 1