Praxis oder Büro im Neubauprojekt Hietzing – Schlüsselfertig nach Ihren Wünschen umgesetzt








Kaufpreis
699.000,00 €
Objektart
Büro/Praxen
Objekttyp
Praxis
Vermarktungsart
Kauf
PLZ
1130
Ort
Wien, Hietzing
ImmoNr.
V-25-00163
Wohnfläche
117,18 m²
Nutzfläche
131,78 m²
Anzahl Zimmer
5
Baujahr
2025
Energieausweis gültig bis
0000-00-00
Provision
3 % zzgl. 20% USt.
Beschreibung
Im Herzen des 13. Bezirks, an der begehrten Speisinger Straße 122–124, wurde soeben ein außergewöhnliches Neubauprojekt fertiggestellt, das architektonische Klarheit, moderne Eleganz und durchdachten Komfort vereint.Auf einem großzügigen Grundstück von rund 885 m² entstanden zwei unabhängige Baukörper mit insgesamt vier luxuriösen Maisonette-Wohnungen sowie zwei repräsentativen Ordinationen/Büroeinheiten im Erdgeschoss – allesamt in hochwertiger Massivbauweise ausgeführt.
Jede Einheit verfügt über einen eigenen Außeneingang – ganz ohne klassisches Stiegenhaus. Das sorgt für maximale Privatsphäre, Unabhängigkeit und ein exklusives Townhouse-Gefühl mitten in einem der lebenswertesten Bezirke Wiens.
Die Maisonetten überzeugen mit klarer Raumaufteilung, lichtdurchfluteten Wohnbereichen, 3–4 Schlafzimmern und großzügigen Terrassen bzw. Balkonen.
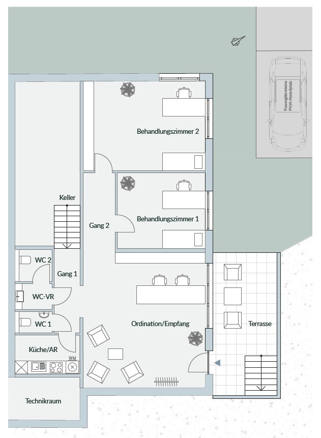
Die Ordinationen / Büros im Erdgeschoss sind großzügig konzipiert und bieten ebenerdigen Zugang, ruhige Arbeitsbereiche sowie einen eigenen Außenbereich. Sie werden aktuell im Edelrohbau ausgeführt, wodurch Käufer die einmalige Möglichkeit haben, bei Ausstattung und Gestaltung aktiv mitzubestimmen.
Die schlüsselfertige Fertigstellung erfolgt anschließend durch den Verkäufer – im Kaufpreis bereits inkludiert. Das bietet höchste Flexibilität bei gleichzeitig professioneller Umsetzung auf hohem Ausstattungsniveau.
Die Eckdaten:
4 Maisonette-Wohnungen mit ca. 108–129 m² Wohnfläche
- 3–4 Schlafzimmer, 2 Bäder, große Wohnküchen
- bis zu 47 m² Freifläche (Terrassen & Balkone)
- mit optional PKW-Stellplätzen auf Eigengrund (siehe Preisliste im Exposé)
2 Erdgeschoss-Ordinationen / Büros mit je ca. 120 m²
- barrierefreier Zugang, hochwertig ausgestattet, mit Terrasse
4 KFZ-Stellplätze
- separat zu erwerben (siehe Preisliste im Exposé)
Ausstattungsbeschreibung:
Die Ausstattung wurde mit einem feinen Gespür für Qualität, Design und Zeitlosigkeit gewählt:
Großformatiges Feinsteinzeug (Marazzi) in Bädern & Außenflächen
Echtholz-Parkett (Landhausdiele, geölt, Eiche Rustikal) von Inku
Sanitärausstattung von Laufen (Serie Kartell), Armaturen von Grohe
Fußbodenheizung & Luftwärmepumpe – ökologisch & effizient
Kunststoff-Alu-Fenster (Rehau Synego) mit elektrischen Raffstores
Hochwertige Türen & Vollbautüre (RC2–RC3 Sicherheitsstandard)
Edle Geländer, moderne Zäune, hochwertige Außenanlagen
Die Bauweise in ZIEGELIT®-Elementen ist IBO-zertifiziert, ökologisch und energiesparend – passend zum nachhaltigen Anspruch des Gesamtprojekts.
Fordern Sie gerne unsere ausführliche Infobroschüre an.
Wir freuen uns, Ihnen dieses besondere Projekt persönlich vorzustellen.
Lage
Die Speisinger Straße 122–124 liegt inmitten des traditionsreichen Bezirks Hietzing, einer der begehrtesten Wohngegenden Wiens. In unmittelbarer Nähe zur Klinik Hietzing, dem Orthopädischen Spital Speising und dem Lainzer Tiergarten verbindet dieser Standort urbanen Komfort mit naturnahem Wohnen auf höchstem Niveau.Ansprechpartner
Seiten: 1