3-Zimmer-Gartenwohnung mit Terrasse & Garage in Döbling – komplett saniert!


























Kaufpreis
579.000,00 €
Objektart
Wohnung
Objekttyp
Erdgeschoss
Vermarktungsart
Kauf
PLZ
1190
Ort
Wien, Döbling / Döbling
ImmoNr.
V-25-00155
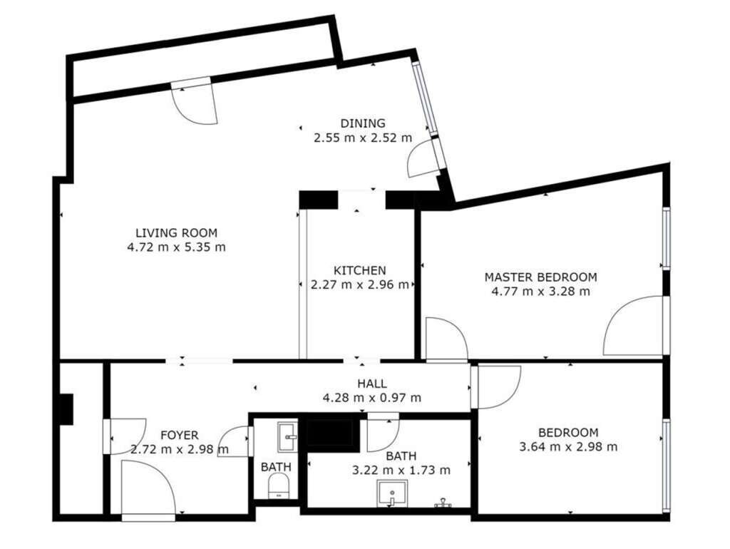
Wohnfläche
93,06 m²
Anzahl Zimmer
3
Anzahl Badezimmer
1
Baujahr
1990
Energieausweis gültig bis
0000-00-00
Provision
3 % zzgl. 20% USt.
HWB
76,5 kWh/(m²a)
Klasse HWB
C
Beschreibung
In absoluter Ruhelage des begehrten 19. Bezirks – in der Zuckerkandlgasse 50 – erwartet Sie diese charmante, hochwertig sanierte Gartenwohnung mit rund 93,06 m² Wohnnutzfläche, einem Kellerabteil mit 1,6 m² (im selben Geschoss gelegen), einer Terrasse im Grünen mit ca. 38,02 m² sowie einem privaten Eigengarten von großzügigen 218,17 m².Darüber hinaus steht Ihnen ein großer Gemeinschaftsgarten zur Verfügung – ideal zum Entspannen oder für gemeinsame Aktivitäten im Freien.
Die im Jahr 1990 errichtete Neubauanlage präsentiert sich in äußerst gepflegtem Zustand. Die Wohnung liegt auf der ruhigen Rückseite des Hauses im Untergeschoss, ist vollkommen uneinsichtig und eingebettet in ein grünes, idyllisches Umfeld – perfekt für Ruhe- und Naturliebhaber mitten in der Stadt.
Highlights der Wohnung:
- 3 optimal geschnittene Zimmer – alles auf einer Ebene
- Großzügiger Wohn-/Essbereich mit direktem Zugang zu Terrasse und Garten
- Umfassende Sanierung 2025 – modern, hochwertig & bezugsfertig
- Badezimmer und zusätzlich separates WC
- Zwei praktische Abstellräume für extra Stauraum
- Helle Wohnräume dank idealer Süd-/West-Ausrichtung
Ausstattung der Wohnhausanlage:
- Personenlift
- Sauna zur freien Nutzung
- Fahrradabstellraum
- Eigenes Kellerabteil im selben Geschoss
- Garagenstellplatz im Eigentum (inklusive)
- Großzügiger Gemeinschaftsgarten zur Mitbenutzung
Die gelungene Kombination aus weitläufigem Grünraum, absoluter Privatsphäre und hochwertiger Ausstattung macht diese Immobilie zu einer seltenen Gelegenheit in bester Döblinger Lage.
Ideal für Paare, kleine Familien oder als stilvoller Rückzugsort mit direkter Stadtanbindung.
Lage
Die Wohnung befindet sich in einer ruhigen Seitengasse im Herzen von Döbling, einem der begehrtesten Wohnbezirke Wiens. Die Zuckerkandlgasse bietet durch ihre Grünruhelage hohe Lebensqualität bei gleichzeitig ausgezeichneter Anbindung: Nahversorger, Schulen, Kindergärten und öffentliche Verkehrsmittel (Bus, S-Bahn) sind schnell erreichbar. Die umliegenden Weinberge, der Nussberg sowie der nahegelegene Donaukanal bieten zahlreiche Freizeit- und Erholungsmöglichkeiten direkt vor der Haustür.Ansprechpartner
Seiten: 1